110 N 1st Street 4-B
Sold

110 N 1st Street 4-B

110 N 1st Street 4-B, Brooklyn, NY 11249

$1,750,000
Welcome to 110 North 1st where thoughtful design creates meaningful connections to nature. A mix of studio to four bedroom condominiums.
Expansive light-filled residences, all with private outdoor space, feature floor-to-ceiling Schu"co windows in living spaces and operable large-format Schu"co windows in bedrooms. Interiors are finished in a soft neutral palette of exceptional natural materials and custom Italian millwork throughout.
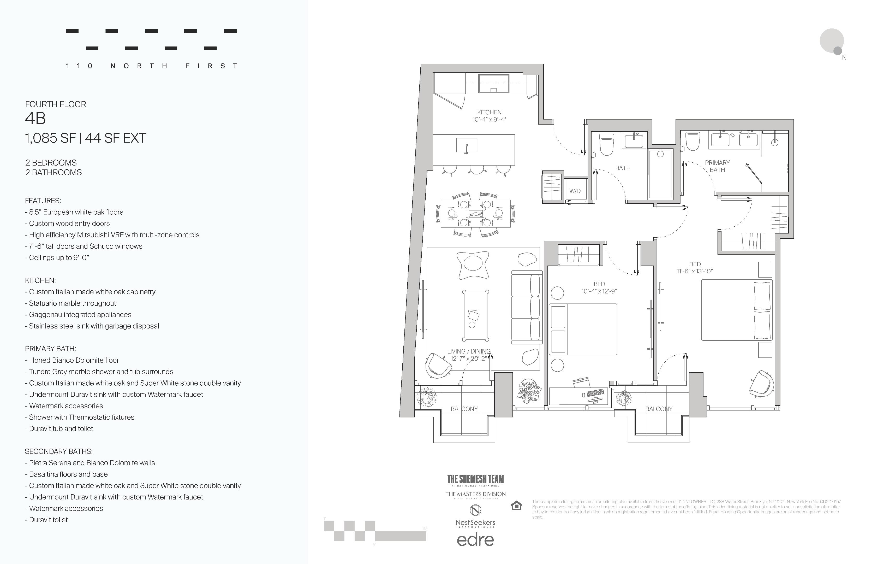
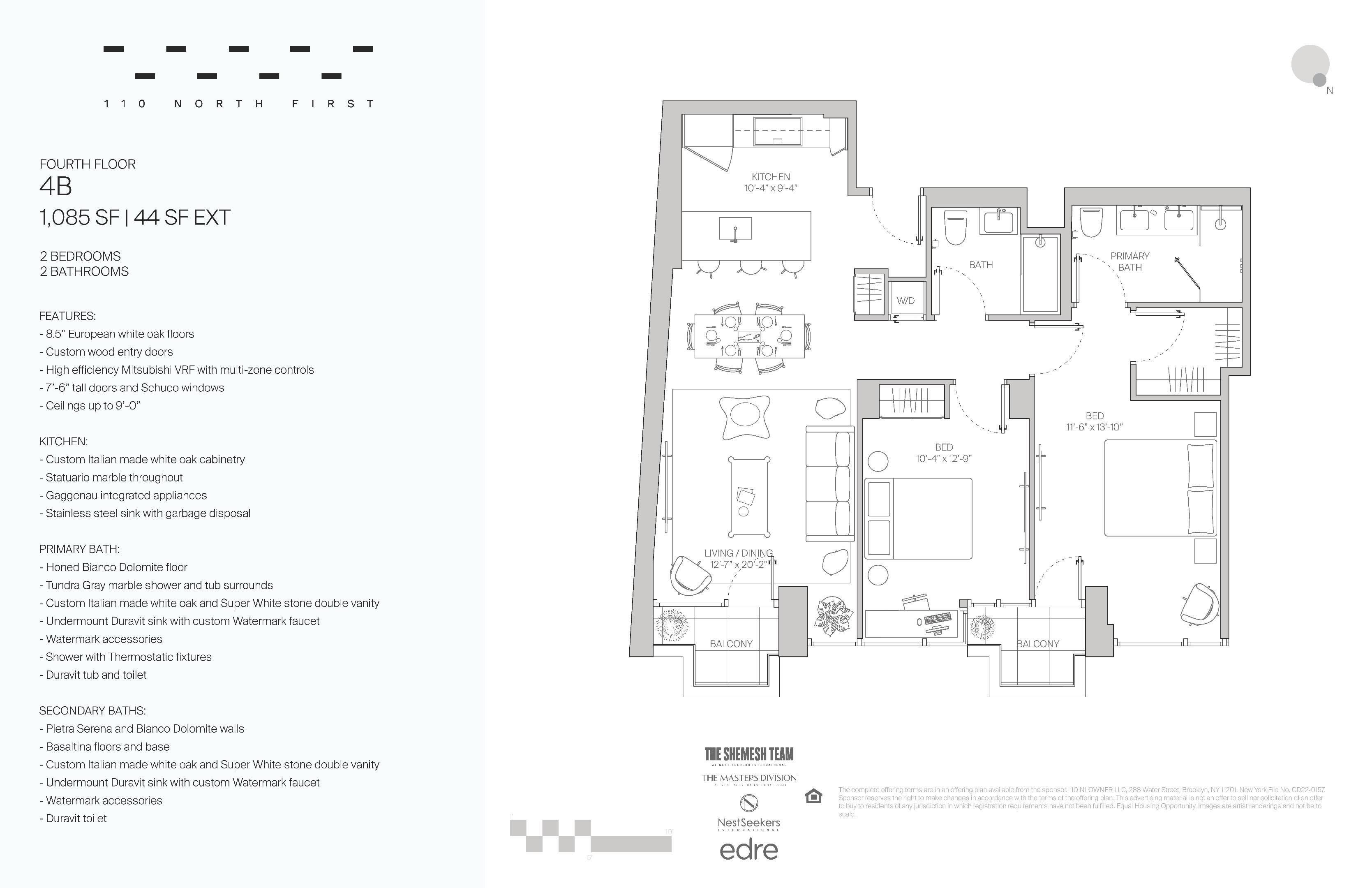
Kitchens balance aesthetic beauty with functional excellence. Full-height custom Italian-made cabinetry by RiFRA is crafted from white oak. Countertops and backsplashes are Statuarietto slab marble. A full suite of Gaggenau appliances includes a induction cooktop electric oven, and an integrated refrigerator, dishwasher, and microwave drawer.
Primary bathrooms with honed Bianco Dolomite and Tundra Gray marble floors and walls are spacious and tranquil. Most feature a wet room with a Duravit bathtub and separate freestanding shower with thermostatic WaterMark fixtures. The custom oak double vanity with Duravit sinks and the bespoke satin pewter faucets and accessories are by Watermark. A large-format Italian made custom medicine cabinet is designed with integrated LED lighting and glass shelving. Vanity countertops are crafted in natural Superwhite stone.
Secondary bathrooms continue the theme of elegant tranquility with Pietra Serena brushed limestone floors, Bianco dolomite walls around the tubs and a custom oak vanity with under-mounted Duravit sink and bespoke satin petwer faucet and accessories by Watermark. The custom medicine cabinet features integrated LED lighting and glass shelving. The Duravit bathtub is enclosed within a bush-hammered Basaltina stone apron. Vanity countertops are crafted in natural Superwhite stone
Hospitality-inspired shared spaces inside and out have been designed for fitness, wellness, relaxation, and creativity. The building features a part-time doorman, 24/7 Carson virtual doorman, double-height lobby, residents lounge, library with double-sided fireplace, children's playroom, onsite parking with EV chargers, pet spa and rooftop dog run. The extensive wellness level is organized around a contemporary rotunda offering a variety of indoor and outdoor spaces that have been purpose-designed to foster health in mind, body, and soul. Residents will enjoy a fitness center which opens to a landscaped garden and features an adjacent studio available for yoga practice. A heated plunge pool cladded in full size slabs of New Pietra cardosa with a leather finish is flanked by the Swedish-style dry sauna room with custom wood paneling and a curved integrated bench designed to provide a sensuous and restorative experience and a meditation room with a backlit wall crafted from onyx, a natural stone believed in some traditions to promote vigor, steadfastness, and stamina. Panoramic views of the East River and Manhattan skyline are spectacular from the rooftop terrace, which has been beautifully landscaped and designed with shared spaces as well as private cabanas. Shared spaces feature dining tables, lounge chairs, and a summer kitchen with barbecue grills. Cabanas, some with summer kitchens and barbecue grills, are set within privacy walls. Parking and storage are available for separate purchase.
The complete offering terms are in an offering plan available from the sponsor. 110 N1 OWNER LLC, 288 Water Street, Brooklyn, NY 11201. New York File No. CD22-0157. Sponsor reserves the right to make changes in accordance with the terms of the offering plan. This advertising material is not an offer to sell nor solicitation of an offer to buy to residents of any jurisdiction in which registration requirements have not been fulfilled. Equal Housing Opportunity. Images are artist renderings and not be to scale.

2
beds

2
baths

1,085 Sq.Ft. LIVING AREA

BIANCA D'ALESSIO

BIANCA D'ALESSIO

Features & Amenities

Interior

  • total bedrooms2
  • Total bathrooms2
  • full bathrooms2
  • Laundry room Building Washer Dryer Install Allowed, Common Area

Area & Lot

  • Status Sold
  • Living Area1,085 Sq.Ft.
  • MLS® IDRLS10950706
  • TypeCondo
  • YEAR BUILT2023
  • NeighborhoodWilliamsburg

Exterior

  • STORIES7
  • AIR CONDITIONINGCentral Air
  • other exterior FeaturesBuilding Storage, Building Roof Deck

Financial

  • Sales Price$1,750,000
  • Real Estate Tax $20,160/yr
  • Common Charges $989/mo

Work With Us

Follow Me on Instagram